C-12皇都三期 (TF02436165)
總價
高人氣
3,288 萬元 (含車位)
3,600 萬元
降價通知我
座落 新北市三峽區國光街
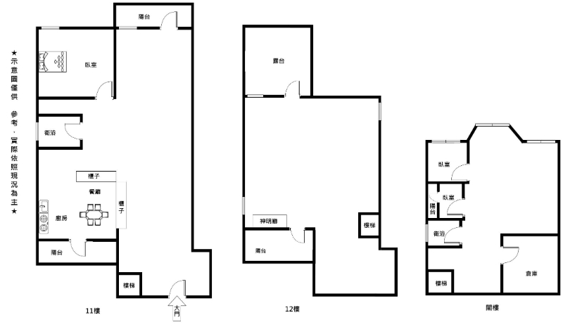
坪數 96.77
不含公設車位為 85.50
地坪 14.74
物件型態 電梯大樓
用途現況 住宅; 自住
謄本用途 住家用
格局 4房/ 3廳/ 2衛
樓層 11-12 / 12樓
面臨路寬 10 米
朝向 座北向南
管理費 3,380元 / 月繳
戶數/電梯 125戶, 每層4戶/ 電梯2部
屋齡 34年8個月
建物結構 鋼筋混凝土造
建物外觀 二丁掛
車位 坡道式平面
邊間
商圈社區 三峽
公園綠地 龍埔公園
學校學區 三峽國小
交通站名 三峽
商場市場 家樂福、民生市場
特色說明
1.近未來捷運站
2.便利交通
3.有露台使用
4.戶數單純
權狀資料
主建物 71.55 附屬建物 7.95
公共設施 17.27 土地面積 14.74
公設車位 11.27 權狀車位 0.00
使用分區 住宅區
  1. 坪數=主建物+附屬建物+公共設施(包含公設車位)+權狀車位。
  2. 主建物係指客廳、餐廳、臥房、浴室、廚房等室內面積。
  3. 公共設施係指區分所有建物之全部或部分所有共用之建物面積,像是樓梯間、電梯間、屋頂突出物等。
  4. 上述係由一平方公尺=0.3025坪換算,詳細資料仍以地政機關核發之謄本為準。
三峽北大大學特許加盟店
高城邦不動產經紀有限公司
(02)2674-7111
感謝點閱,歡迎與我聯絡!
您好,我是王聖翔。
請撥我的手機 0919-929-018
或加我 LINE 好友
由我為您提供服務。
 高點閱率物件,有意者請把握機會!

※ 本網頁所刊登照片如為道路街景或土地示意圖,非廣告標的所在地僅供參考,實際狀況請依使用執照或謄本所載為準。
C-12皇都三期,新北市三峽區國光街
C-12皇都三期,新北市三峽區國光街
C-12皇都三期,新北市三峽區國光街
C-12皇都三期,新北市三峽區國光街
C-12皇都三期,新北市三峽區國光街
C-12皇都三期,新北市三峽區國光街
C-12皇都三期,新北市三峽區國光街
C-12皇都三期,新北市三峽區國光街
C-12皇都三期,新北市三峽區國光街
C-12皇都三期,新北市三峽區國光街
C-12皇都三期,新北市三峽區國光街
C-12皇都三期,新北市三峽區國光街
C-12皇都三期,新北市三峽區國光街
C-12皇都三期,新北市三峽區國光街
C-12皇都三期,新北市三峽區國光街
C-12皇都三期,新北市三峽區國光街

資料處理中,請稍等。